
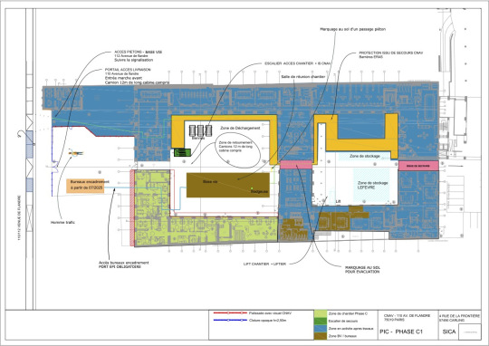
Cliquez sur le plan ci-dessous pour l'agrandir et visualiser l'accès au chantier et la zone de déchargement.

Informations pratiques
Adresse du chantier : 110 Avenue de Flandre 75019 Paris
Coordonnées GPS : Latitude 48° 53’ N Longitude 2°22’ E
Horaires de livraison : 7h - 15h pour les livraisons avec prestations SICA
et 7h - 19h pour les livraisons sans prestation SICA
Téléphone de Sica sur le chantier : +33 7 49 83 92 99
Email de sica sur le chantier : sicalogistique.cnav(at)gmail.com

Consignes
Seules les livraisons annoncées sur cette plateforme de réservation seront autorisées à pénétrer sur le chantier.
Les livraisons de 15h à 19h sans SICA sont possibles uniquement si l'entreprise demandeuse met à disposition un agent de trafic supplémentaire à celui de SICA pour la sécurisation de la voirie.
Les livraisons doivent êtres annoncées 48 heures à l’avance.
Les réservations ne sont accessibles qu’aux entreprises préalablement autorisées par la CNAV.
Dimension du utile du lift : L 4100 mm x l 1400 mm x H 2200 mm, poids 1200 kg.
Les palettes doivent être prenables dans les deux sens.
Dimension maximum des palettes manutentionnables par SICA L 3300 mm x l 1200 mm x H 1800 mm, poids 1200 kg.
Toute palette d'une valeur supérieure à 5 000 € HT doit être déclarée lors de la réservation.
Pour consulter le protocole logistique, écrire à sicalogistique.cnav(at)gmail.com